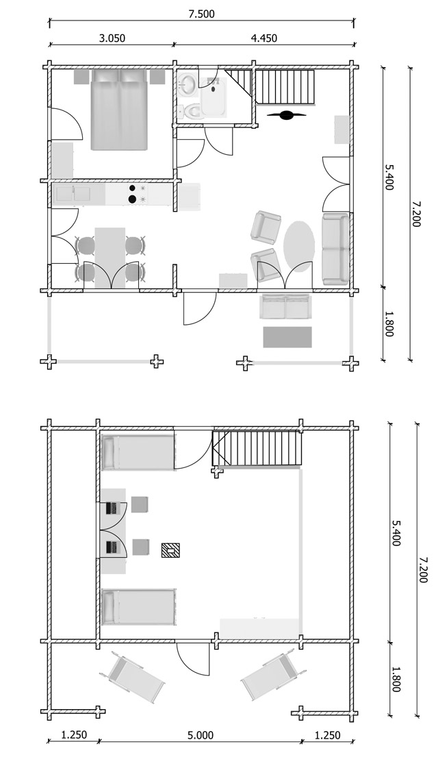
Modelo 92L


m2 Const m2 Util WC PL
108.0 73.0 1 30

Casa

Plano

[Índice]     [Ir a Tarifas]