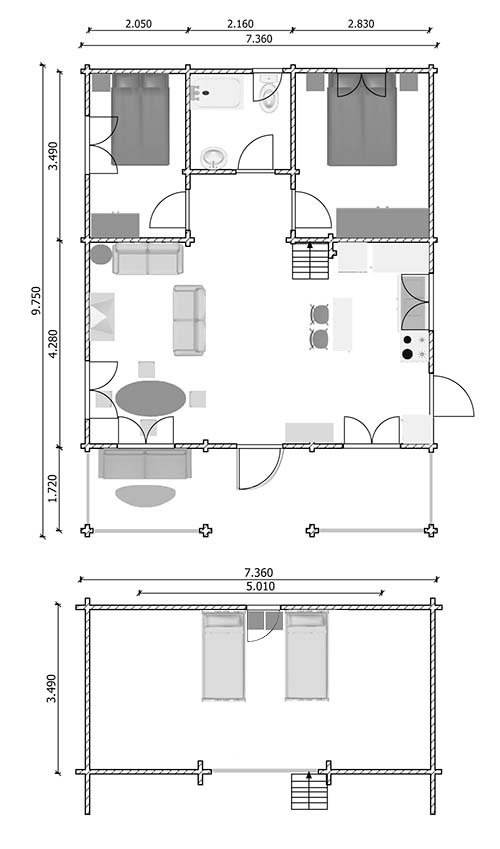
Modelo 79SL


m2 Const m2 Util WC PL
90.0 66.0 1 27

Casa

Plano

Plano



[Índice]     [Ir a Tarifas]