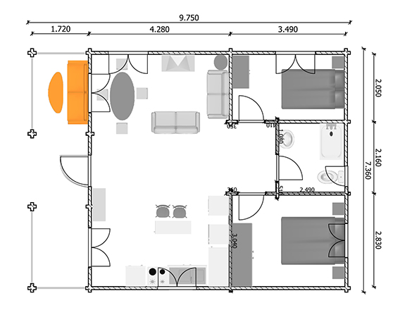
Modelo 69


m2 Const m2 Util WC PL
69.1 56.0 1 25

Casa

Plano

[Índice]     [Ir a Tarifas]