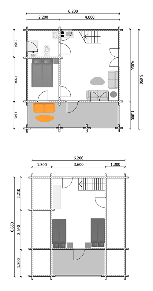
Modelo 58SL


m2 Const m2 Util WC PL
59.5 48.3 1 25

Casa

Plano



[Índice]     [Ir a Tarifas]