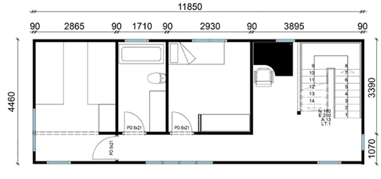
Modelo 178L


m2 Const m2 Util WC  
178.0 168.0 2  



Plano

Plano

[Índice]     [Ir a Tarifas]