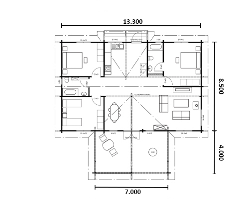
Modelo 142


m2 Const m2 Util WC PL
142.0 114.0 2 45

Casa

Plano

[Índice]     [Ir a Tarifas]