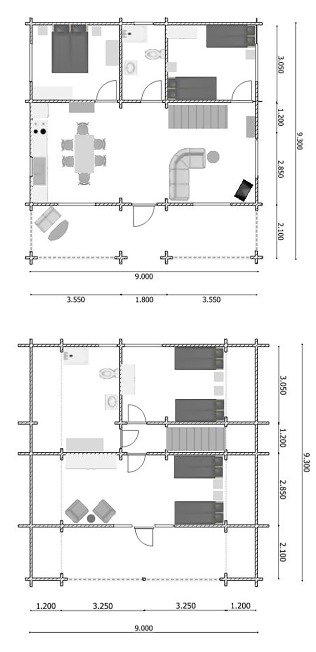
Modelo 153L


m2 Const m2 Util WC PL
167.4 113.4 2 40

Casa



[Índice]     [Ir a Tarifas]