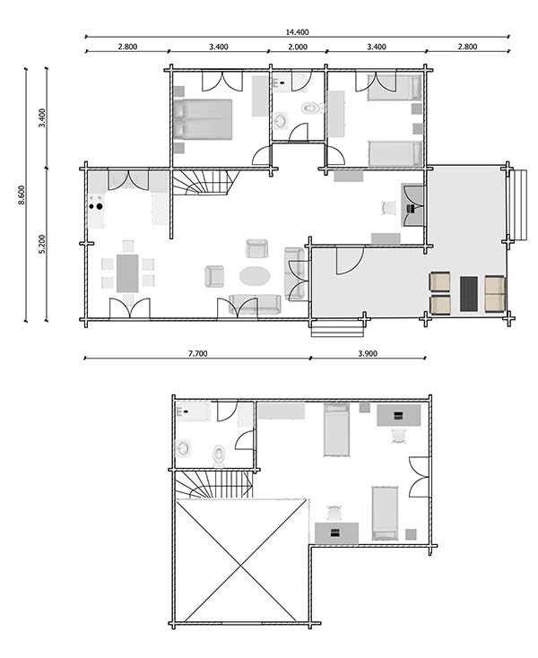
Modelo 185L


m2 Const m2 Util WC PL
185.0 155.0 2 40

Casa

Plano



[Índice]     [Ir a Tarifas]