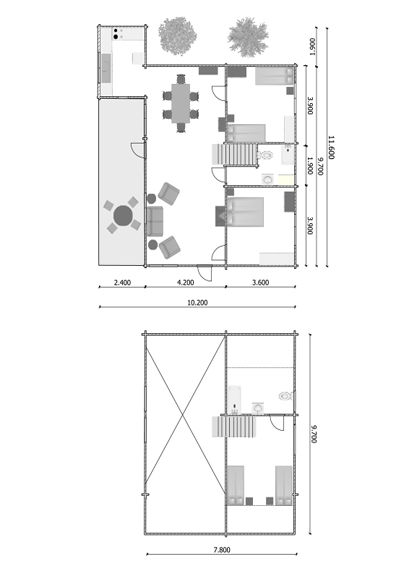
Modelo 130L


m2 Const m2 Util WC PL
148.0 96.0 1 40

Casa

Plano



[Índice]     [Ir a Tarifas]