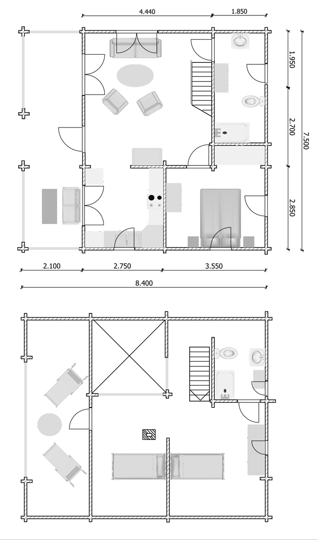
Modelo 118L


m2 Const m2 Util WC PL
126.0 94.5 1 35

Casa

Plano

[Índice]     [Ir a Tarifas]